Bloomington city council decision on Johnson’s Creamery alley vacation to wait until June 15

Bloomington city council decision on Johnson’s Creamery alley vacation to wait until June 15

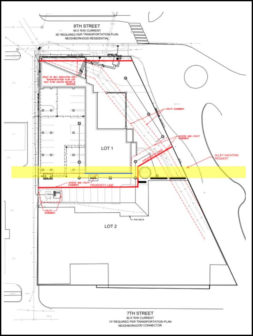
At its regular meeting on Wednesday (June 1), Bloomington’s city council postponed a vote on a request from Peerless Development to vacate an east-west alley that cuts across the parcel where the Johnson’s Creamery building sits.

Vacating the alley means ceding to private ownership some land that is now public right-of-way. The vote to postpone a vote until June 15 was unanimous. That’s the last regular meeting before the council’s summer recess.

The alley vacation would be needed in order for Peerless to move ahead with a development on the northern part of the parcel. The housing development is supposed to include 51 apartments right next to the B-Line Trail, off 7th Street. Bloomington’s plan commission approved the site plan for the new development in October 2021.

But that approval was contingent on getting a greenlight from the city council for the vacation of the east-west alley—because part of the proposed new building would sit in the right-of-way.

At its Wednesday meeting, the council heard a presentation from Bloomington mayor John Hamilton’s administration, delivered by corporation counsel Beth Cate. She pushed the council to make the alley vacation contingent on a roughly $250,000 payment to the city of Bloomington for a “world class” art installation at the site of the Johnson’s Creamery historic smokestack.

By the time of Wednesday’s meeting, no agreement had been reached between the city and Peerless Development on an art-for-alley-vacation deal.

But Peerless founder Michael Cordaro said on Wednesday that he was hoping he might soon receive a decision letter from his title insurance company, that might indicate a forthcoming payment to Peerless, which would fund the art agreement between Bloomington and Peerless. The payment would derive from the title company’s failure to identify the fact that an unvacated alley existed on the parcel.

The postponement is supposed to allow time for Peerless to get some clarity about the likelihood it will receive some compensation for the title company’s error.

The pitch to tie the alley vacation to a payment for public art was essentially the same presentation that Cate gave a week before, at the council’s committee-of-the-whole meeting.

The artwork would commemorate the creamery’s 140-foot historic smokestack, which Peerless has been ordered by the city to demolish down to 60 feet—because of its structurally unsafe lean. Before that demolition can take place, AT&T needs to remove its communications equipment from the smokestack.

Based on Wednesday’s deliberations, the nose count for the June 15 vote on the alley vacation is not clear. But at least some councilmembers on either side—leaning for or against granting the vacation—did not seem eager to make the public art pivotal.

Isabel Piedmont-Smith called the connection between the payment and the vacation of the right-of-way “tenuous at best.” She said she would be ready to vote in favor of the alley vacation that night—but would also support a postponement.

Ron Smith sounded inclined to support vacating the alley but hoped for some kind of negotiation along the lines of income-restricted housing. As far as the payment for the public art, Smith agreed with Piedmont-Smith that it felt like a quid pro quo.

“It just doesn’t feel right,” Smith said. Smith referred to local attorney Michael Carmin’s public commentary, saying that Carmin’s remarks “confirm my gut feeling” that it was not right.

Carmin stressed that he was not representing Peerless, but only himself. He told the council that from a legal perspective, “If there’s not a nexus between the public benefit that’s been extracted, in exchange for the allocation, then you have what really amounts to ‘zoning by purchase’—which is illegal.”

Carmin allowed that the request from Peerless is not a zoning petition. But it’s a land use decision, which means it has all the same characteristics of a zoning decision, he said. “You cannot buy zoning,” Carmin said, adding, “That’s illegal.”

Leaning against vacating the alley was Dave Rollo who said, “If the alley has some utility, I don’t think it’s leveraging public art.” He continued, “I think it should be maintained simply to prevent another gargantuan structure, especially on something as valuable a public asset as the B-Line Trail.” Rollo wrapped up, “So I believe I’ll be voting no on the alley vacation in any case.”

Somewhere between the positions of Piedmont-Smith and Rollo was that of Matt Flaherty, who said, “​​I think the proposal for [a payment for art] in exchange for vacation of the right-of-way, makes it less likely that I will support the vacation of the right-of-way.” Flaherty continued saying that such a payment would undermine the case for vacation, because he doesn’t think it’s the right approach.

Like Carmin, Flaherty appealed to the notion of “nexus,” saying, “I think the public benefit of vacating a right-of-way has to be tied to something that couldn’t happen, unless you vacate the right-of-way.”

In part, Flaherty’s remarks depended on the fact that the smokestack sits in the alley to be vacated. If an easement were granted for the city’s installation and maintenance of smokestack artwork, the benefit of public art at the smokestack could be achieved, with or without the vacation of the alley.

Jim Sims indicated he found it encouraging to hear that there seemed to be a consensus on the council that he and his colleagues were searching for some kind of common ground. Sims said he found the process “messy.” He  wrapped up his remarks by saying, “Just remember, Jim Sims, at-large councilmember, does not like messy!”

Sue Sgambelluri and Susan Sandberg voted against the alley vacation in the straw poll taken at the council’s committee meeting the week before. That straw poll came in the context of a “hard no” from Cordaro about the idea of paying some amount for an art installation. By Wednesday, Cordaro’s position had somewhat softened. On Wednesday, neither Sgambelluri nor Sandberg gave an indication their position had changed.

But Sgambelluri got confirmation during her question time that the development proposed by Peerless does not include any income-restricted (aka “affordable”) units.

The topic of the public benefit that comes from housing got a lot of discussion at Wednesday’s meeting. Do the market-rate housing units that Peerless would build give the city an adequate public benefit, in exchange for vacating the public right-of-way?

The criteria for vacating public rights-of-way are ensconced in a resolution, approved by the city council in 1987. [Res 87-02] From that resolution, the criteria are:

1. Current Status – Access to Property: the current utilization of the right-of-way in question – as a means of providing vehicular or pedestrian access to private property, churches, schools, or other public places, for public utility or drainage purposes, or for other public purpose.
2. Necessity for Growth of the City:
a. Future Status – the future potential for public utilization, possible future need for the right-of-way due to future changes in land use;
b. Proposed Private Ownership Utilization – the proposed utilization of parcel in question if it reverts to private ownership, potential for increased benefit to the City under private ownership (does the proposed use contribute to the orderly growth of the City);
c. Compliance with regulations – the effect of vacation upon compliance with all applicable regulations: subdivision, zoning, access control, off-street parking (does the vacation present a non-compliance problem or hinder future compliance upon anticipated development or change of use?);
d. Relation to Plans – the relationship of vacation with the Master Plan, Thoroughfare Plan, Neighborhood Plans, or any special studies that might apply

During public commentary, Bloomington resident Greg Alexander described Peerless as providing an essential service (housing) in order “to make a buck,” which he accepts as a public benefit, even if he has no sympathy for Peerless. The current use of the land is a parking lot. If Peerless comes to Bloomington and wants to “turn housing for cars into housing for people” that is something Alexander wants to see happen.

Flaherty said that providing housing per se is not enough to justify vacation of a right-of-way, because that’s an argument that could be made for any housing project. There needs to be something that’s unique to the property, if any public-right-of-way is to be vacated, Flaherty said.

Whether the housing units are income-restricted is important for some councilmembers. Smith asked Cordaro if the idea of making some of the units income-restricted had been considered.

Cordaro told Smith that Peerless could not make it a viable project, given the land and construction costs, to add affordable housing.

Councilmember Steve Volan noted that the amount of money the city wants as a payment to create public art would barely be enough to buy one unit of housing outright. He called it a “drop in the bucket.” Volan said, “We agree that we need more housing.”

The city council’s June 15 meeting starts at 6:30 p.m. in city hall. The meeting information packet for that meeting will be posted on the city council’s OnBoard meeting page.