Center for Recovery rezone request for West 1st Street stems from 2021 Bloomington map change

Center for Recovery rezone request for West 1st Street stems from 2021 Bloomington map change

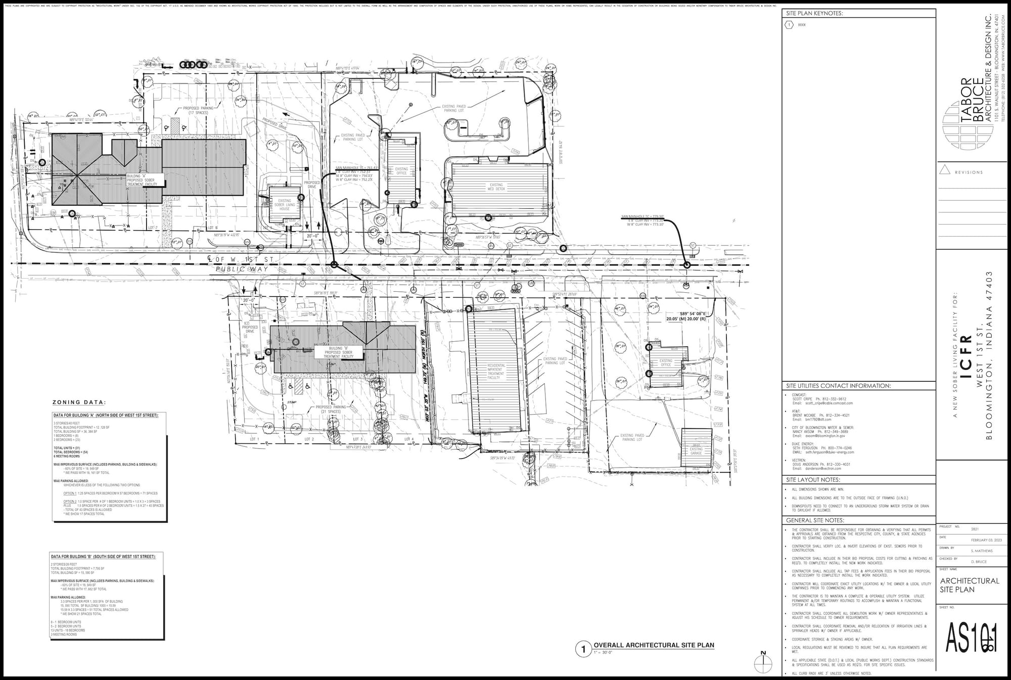
The Indiana Center for Recovery would like to build two group home facilities in central Bloomington, one on the north side of West 1st Street, and the other on the south side.

The facilities would be used for treating patients with substance use disorders and mental and behavioral health conditions.

But to use the land for the purpose of treating patients in a group home would require a rezone of the property, which is currently designated as R3 (residential small lot). The Center for Recovery wants the property rezoned to MH (mixed use healthcare), which was previously the zoning district for the property.

The property got rezoned from MH to R3 as a part of the 2021 adoption of a new zoning map for the city.

Bloomington’s plan commission will hear the rezone request  for the first time at its Monday (Jan. 8) meeting.  After hearing the staff report on Monday, discussing it, and hearing comment from the public, the plan commission will likely vote to move the request along to a required second hearing in February.

[Updated at 11:15 a.m. on Jan. 8, 2024. The plan commission meeting scheduled for Monday, Jan. 8 has been canceled. According to interim planning director Jackie Scanlan, Indiana Center for Recovery requested that its rezone request be continued to the next meeting, in February. That left no other petitions on the agenda. With just administrative matters remaining—which included officer elections and confirmation of Scanlan’s appointment interim director—the meeting was canceled.]

By the time of the February plan commission meeting, the Bloomington city council’s appointee to the plan commission should be settled. Serving in that role last year was Ron Smith, but his bid for re-election was unsuccessful. The year’s first meeting of the city council, when the appointment could be made, does not take place until Wednesday (Jan. 10).

The attendance of any councilmembers at Monday’s plan commission meeting could serve as an indicator of their interest in serving as the council’s appointee to the commission.

The Center for Recovery’s legal position is that the 2021 change was a “spot zoning” of the property. The term “spot zoning” describes a situation where property is unlawfully singled out for different treatment from surrounding land.

In addition to its contention that the 2021 was an unlawful rezoning of the property, The Center for Recovery has conveyed in a letter from its attorney to the plan commission that  its patients fall within a protected class. That’s a class of people with disabilities—as defined under the Americans with Disabilities Act and the Fair Housing Act—who have substance use disorder, and mental or behavioral health conditions.

The Center for Recovery describes the building on the north side of the street like this:

  • North first floor: 2 one-bedroom units, 7 two-bedroom units, 4 offices and 2 meeting rooms.
  • North second floor: 3 one-bedroom units and 8 two-bedroom units
  • North third floor: 3 one-bedroom units, 8 two-bedroom units

For the building on the north side of the street, that’s a total of 31 units and 54 bedrooms with 4 offices, and 2 meeting rooms.

The Center for Recovery describes the building on the south side of the street like this:

  • South first floor: 4 one-bedroom units, 2 two-bedroom units, 1 office, and 2 meeting rooms.
  • South second floor: 4 one-bedroom units and 3 two-bedroom units.

For the building on the south side of the street, that’s a total of 13 units and 18 bedrooms with 1 office and 2 meeting rooms.

The property is to the west of the former IU Health hospital site, which is being redeveloped by the city as a new neighborhood called Hopewell.

The planning and transportation’s staff report just recommends that the plan commission hold the second hearing, but foreshadows an eventual staff recommendation against the rezone.

The staff report allows that the intended use for the property is “one that can be beneficial to the community and city as a whole.”

But the staff report questions whether the requested rezone of that location is supported by the city’s comprehensive plan.  The report questions the appropriateness of a rezone that has the effect of allowing larger structures “deeper within a neighborhood” instead of on a more high-traffic street.

The staff report also cites owner-occupied housing as a goal of the city’s comprehensive plan for the area to be rezoned—which the Center for Recovery’s project does not propose.

The staff report states:

While multi-family style buildings are allowed and appropriate in some locations within the former Hospital area, the location of these properties for a Medical zoning district that is not on a high volume street and buried within a neighborhood may not be an appropriate location for this higher intensity zoning district.

It is the city council that has the final say on rezone requests. Even if the plan commission forwards the requested rezone to the city council with a negative recommendation, the council could choose to grant it.