Public works notebook: Sole $13M bid on Hopewell infra rejected, 4 maintenance of traffic plans OK’d

Public works notebook: Sole $13M bid on Hopewell infra rejected, 4 maintenance of traffic plans OK’d

Bloomington’s three-member board of public works voted at its regular Tuesday meeting to reject the sole bid for a major infrastructure project at the site of the former IU Health hospital, now known as the Hopewell neighborhood.

The $13.5 million bid, from Milestone Contractors, was about 30 percent higher than the engineer’s estimate.

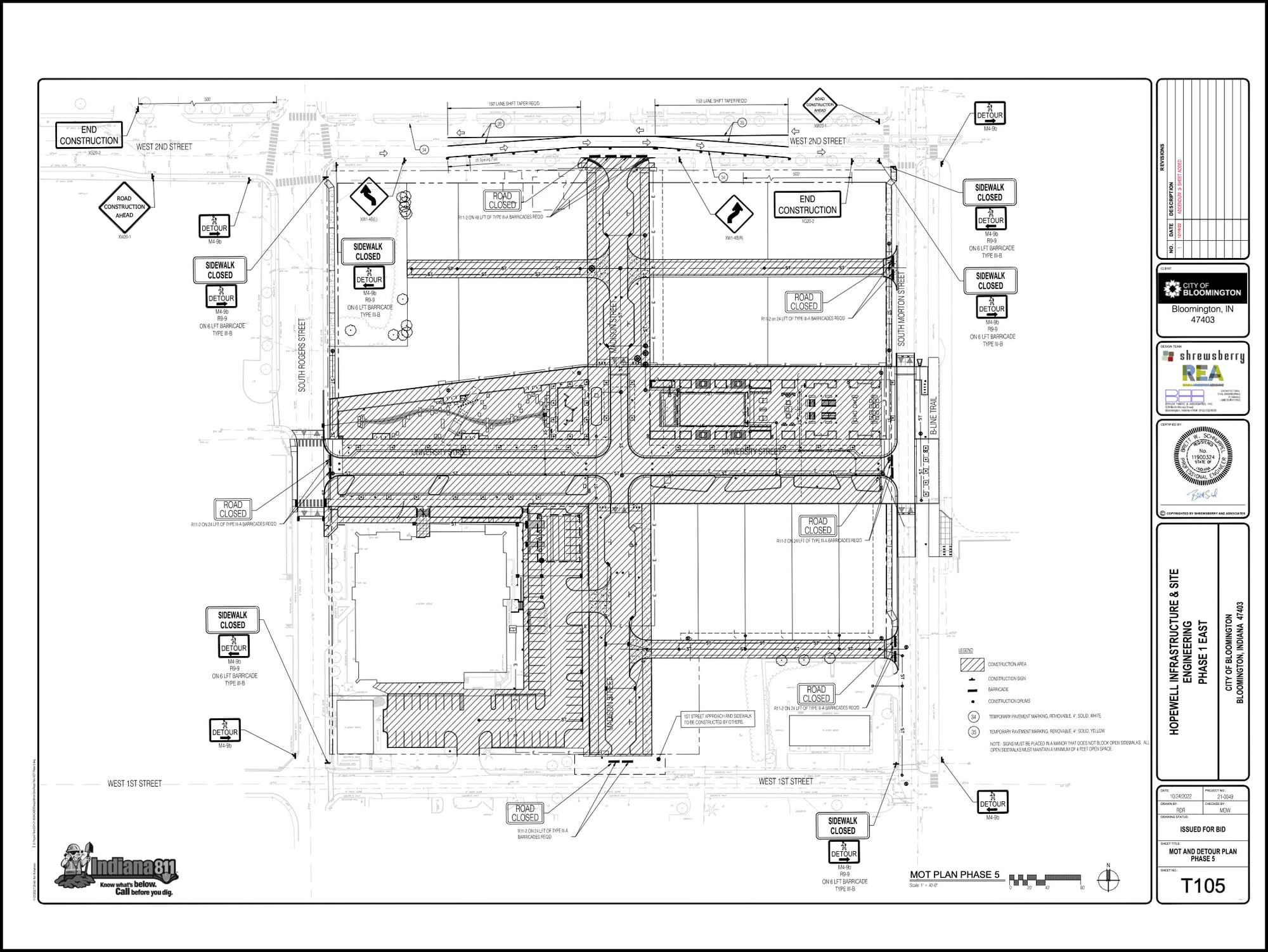
The area for the project is bounded by 2nd Street to the north, 1st Street to the south, The B-Line Trail to the east, and Rogers Street to the west. It’s called Phase 1 East in the master plan for the development of the site.

The demolition phase for Phase 1 East is complete. The rejected bid was for installing utilities, constructing streets, landscaping and bicycle-pedestrian facilities.

The project will now be re-bid, after the city’s staff reviews the package for items that could be modified or deleted from the current plan. “When we re-bid it, hopefully there would be a reduction in the cost there,” said engineering department project manager Matt Smethurst at the board’s Monday work session.

Not included in the Phase 1 East project are any of the hospital grounds west of Rogers. The hospital building itself is still undergoing demolition.

Also at Tuesday’s meeting, the board of public works approved four requests for blocking the public right-of-way (ROW) and the associated maintenance of traffic plans (MOTs).

Among the ROW requests were a Duke Energy project along Rogers Street, and a 1-month extension to the road closure for The Standard construction. The Standard is the student-oriented housing project that is replacing the Brownstone Terrace.

When bids for Hopewell Phase 1 East were opened on Jan. 9, the only company to submit one was Milestone Contractors, LP—for $13,568,269.

At Monday noon work session for the board of public works, Smethurst said the city’s estimate for the work had been $10.35 million.

At the board’s Tuesday meeting, Smethurst responded to a question from the public mic by The B Square. Smethurst said no essential elements would be deleted from the plans to be re-bid. Many of the plan elements with major cost differences, when compared to the engineer’s estimates, were specialty items like benches, pavilions, and a water feature—not the streets or sidewalks, Smethurst said.

The board had previously approved the use of public right-of-way for Duke Energy to cut down trees along a north-south corridor that includes Rogers Street, as preparation for a project that will install new transmission lines.

The transmission line project will connect the substations at 11th and Rogers streets to the substation on South Rogers Street near Switchyard Park.

Duke Energy’s request to use public right-of-way for the work on the actual transmission lines stretches over five months—from Feb. 1 to June 30.

Also approved at Tuesday’s meeting was a 1-month extension of the closure of 14th Street for the construction of The Standard.

The student-oriented housing development is replacing the old Brownstone Terrace complex just south of 14th Street. Factoring in the bedrooms that were in the old Brownstone terrace, The Standard will net about 830 additional bedrooms for the city’s student housing supply. It’s supposed to open in fall 2023.

The 14th Street closure now goes through the end of February.

Almost exactly one year previously,  the board of public works had upheld $25,000 in fines against Landmark, the developer of The Standard, for not maintaining its maintenance of traffic plan (MOT). The MOT is supposed to provide an adequate alternative pedestrian route around the public right-of-way closure.

At Tuesday’s board of public works meeting, Bloomington resident Greg Alexander offered public comment on the 1-month extension, saying that the decision to extend was a chance to check past and current compliance with the MOT. Alexander reported, based on a site visit two days before, that the painted markings for the temporary crosswalk across Dunn Street at 14th Street had worn away.

Landmark’s project manager Eric Schulte responded to the crosswalk issue by reporting that engineering field specialist Paul Kehrberg had brought it to his attention Tuesday morning and that it had been repainted the same afternoon.