Bloomington gives self-storage project more time to get permit—but just 3 months, not a year
At the Bloomington plan commission’s regular Monday night meeting, the already approved site plan for a 110,000-square-foot self-storage building on the east side of Bloomington got a three-month extension—beyond the one year that site plans are normally valid.


Left: The location of a planned self-storage building is indicated in the purple-shaded region. Right:The general vicinity of the planned self-storage unit facility is indicated with a red square on the east side of the city.
At the Bloomington plan commission’s regular Monday night meeting, the already approved site plan for a 110,000-square-foot self-storage building on the east side of Bloomington got a three-month extension—beyond the one year that site plans are normally valid.
The planned project is located on Morningside Drive.
But the extra three-months was shorter than the year-long extension that was requested by the owner, Tim Hanson, with WS Property Group, and Daniel Butler, project manager with Bynum Fanyo & Associates. The owner has not yet been able to satisfy all the conditions to get a development permit for the site plan.
Factoring into the plan commission’s decision not to grant the full one-year extension was the light attendance. Attending Monday’s meeting were just five commissioners, the minimum required for a quorum of the nine-member group. Any plan commission action requires support from at least a majority of members, which is five. Any vote on Monday had to be unanimous among the five, in order to pass.
The source of a potential dissenting vote on a one-year extension was Hopi Stosberg, who serves as the city council’s representative on the plan commission. She had voted against the site plan when the commission considered it a year ago. The planned self-storage unit building is located in District 3, which Stosberg represents. She described her general attitude towards such projects like this: “Self storage is a horrible use of land resources.”
As a separate item on the same night’s plan commission Monday agenda was a recommendation that to some extent reflected Stosberg’s sentiments. Getting approval on Monday was a recommendation that the city council enact a change to the city’s basic zoning code that would restrict self-storage units to just two different zoning districts.
On Monday, Stosberg said the longest extension she would be willing to grant to the Morningside self-storage site plan would be three months. She added, “I will not vote affirmatively on a year extension. The longest I will allow them is a three month extension, which would validate it only until September 9, 2025.”
The date comes from adding three months to the expiration date of last year’s site plan approval.
A counterpoint came from plan commissioner Tim Ballard, who focused on the request in front of the commissioners on Monday, which was a time extension, not the site plan itself, which had been approved by the plan commission a year ago. Ballard put it like this: “I think the point is, what are we voting for—a time extension. What’s done is done. Everything was approved. We’re at this step now.”
Ballard continued, “And I’ll say this: While I respect it, I don’t agree with being able to take your vote now and being able to subject it back a year ago.” Ballard added, “I think a better use of our time is approving it based on the valid reasons they have.”
The reasons for the delay, in getting a development permit based on the site plan approval, were described by Hanson and Butler in a letter included in the meeting information packet, which read in part:
Meeting these conditions required coordination with AT&T, adjacent property owners, real estate representatives, third-party easement preparers, and external legal counsel. During this process, AT&T sold the property to Reign Capital, requiring us to restart negotiations and documentation with the new owner.
Jillian Kinzie, who was presiding over Monday’s meeting in plan commission president Brad Wisler’s absence, was in agreement with Ballard’s position, that the substance of the site place was not in front of the plan commission that night.
Kinzie put it like this: “I’ll just add a comment that I do not want to relitigate the conditions of this proposal. I think that there’s already been a vote and the recommendations a year ago, I’m not interested in re-examining all of that right now.” Kinzie added, “Commissioner Stosberg, I respect your position, because you also voted no on the original proposal.”
Patrick Holmes also offered some support for the approach that Stosberg was taking, saying, “I think if you voted no on the original one, that’s completely legitimate to vote no on the extension.” Monday night’s meeting was the first for Holmes as a plan commissioner. He was appointed by Bloomington mayor Kerry Thomson to replace Chris Cockerham, who resigned to pursue a degree at Georgetown University.
Butler had indicated early in the discussion that he didn’t think a full year would be needed, saying that he thought the approved development permit would be received within “the next month or two.”
The time frame in Butler’s comments proved to be the opening that the plan commission settled on for resolving the issue in favor of a three-month extension.
Stosberg’s initial motion, to give the site plan an extension of just three months, failed due to a lack of a second. Responding to a procedural question, Bloomington’s assistant director of planning, Jackie Scanlan, told the commission that if they did not pass some motion with a five-vote majority, that under their rules of procedure, the question would be automatically continued until the next meeting.
Faced with a choice between a three-month extension and a continuance until the next meeting, Butler said he’d prefer the three-month extension—but indicated that the timeframe could be a challenge. He put it like this: “I mean, three months is tight, just because some of that is out of our hands.” Plan commissioners then considered and voted unanimously to approve the three-month extension.
If the development permit is not received within three months, there is an option for the site plan to be given an additional extension, up to a total of a year past the original expiration date, which was in June this year.
Responding to a question from Holmes, Bloomington’s development services manager Eric Greulich explained the impact on the self-storage site plan from a potential change to the city’s UDO (Unified Development Ordinance), which the plan commission later that same night voted to recommend to the city council. The change would allow property to be used for self-storage units only in the Mixed-Use Corridor (MC) and Mixed-Use Student Housing (MS) districts.
Greulich told Holmes that even if the city council approves the recommended change to the UDO, the Morningside Drive self-storage project could continue to exist, even as a non-conforming use. That’s because it was approved under the zoning laws that were applicable at the time.



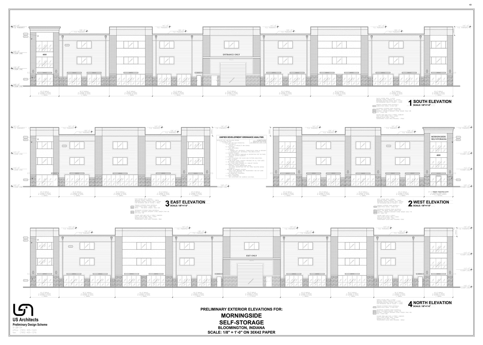
Left and Middle: Rendering and elevations from last year’s meeting information packet. Right: The aerial image is from Monroe County’s geographic information system.
Comments ()